Bilocale in affitto

Milano, Via Anselmo da Baggio - Baggio
€ 900 / mese
2 locali 2 locali
55 Mq 55 Mq
1 bagno 1 bagno

Bilocale in affitto

Milano, Via Anselmo da Baggio - Baggio

Descrizione annuncio

Via Anselmo da Baggio:

Nel cuore di Baggio, adiacente a Via Antonio Francesco Rismondo ed a pochi passi dal Parco delle Cave, oltre che a pochi metri dalla fermata di vari mezzi di superficie (67/76/433) che in meno di 15 minuti conducono anche alla fermata della metropolitana M1 BISCEGLIE che permette di arrivare al centro della città; proponiamo in LOCAZIONE un BILOCALE RISTRUTTURATO, posto al piano terra in stabile senza ascensore e con servizio di pulizie settimanali.

La zona risulta tranquilla e ben servita, fornita di tutti i servizi di prima necessità come supermercati, farmacie, scuole, poste, bar, ristoranti.

Inoltre, il quartiere è noto per essere tranquillo, circondato da parchi e zone verdi, ma allo stesso tempo ben collegato con il centro città grazie ai mezzi di trasporto pubblico. Questa combinazione offre una qualità della vita elevata, soprattutto per chi cerca un equilibrio tra la frenesia della città e la tranquillità della natura.

La zona si prepara a diventare oggetto di un'importante trasformazione e sviluppo, basti pensare alla futura fermata della metropolitana M1, proprio all’interno del quartiere.

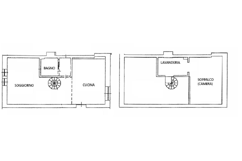
L'appartamento risulta essere così composto:

Ingresso diretto in zona giorno doppiamente esposta, con subito di fronte l’ingresso la zona cucina dotata di elettrodomestici ed arredata con tavolo da pranzo, finestrata e con affaccio sul tranquillo cortile interno. Lo spazio cucina è comunicante con la zona adibita a soggiorno, fornita di divano e parete attrezzata con televisore ed a sua volta finestrata e con affaccio sula Via Anselmo da Baggio. A completare il piano troviamo poi un bagno dotato di box doccia.

Attraverso delle scale a chiocciola accediamo poi al soppalco, dove troviamo la camera da letto matrimoniale e ad un comodo spazio ripostiglio adibito a zona lavanderia fornito di lavatrice.

L'appartamento si presenta in ottimo stato interno, ristrutturato da pochi anni e mantenuto ottimamente nel tempo, con infissi in doppio vetro/PVC e con pavimentazione in grés porcellanato in tutti gli ambienti della casa, ad eccezione della camera soppalcata in cui sono presenti delle mattonelle con differente trama. Aria condizionata con spit caldo freddo e porta blindata.

L’appartamento sarà LIBERO DAL 1 GENNAIO 2026.

Il canone mensile è di euro 900,00 + euro 100,00 DI SPESE CONDOMINIALI.

Utenze (luce e gas) a consumo, a parte.

Riscaldamento autonomo.

Soluzione ideale per lavoratori REFERENZIATI, data la posizione strategica e la disposizione degli ambienti. MASSIMO DUE PERSONE.

Richieste 3 mensilità di cauzione oltre che mensilità entrante.

Contratto transitorio.

Ogni agenzia ha un proprio titolare ed è autonoma! Le informazioni non costituiscono elemento contrattuale! VALUTAZIONI GRATUITE!

Mostra tutto

Nelle vicinanze

Trasporto pubblico Trasporto pubblico
Bisceglie
Bisceglie
2,0 Km
San Siro Stadio
San Siro Stadio
2,5 Km
Piazza Axum (Stadio Meazza)
Piazza Axum (Stadio Meazza)
3,0 Km
Via Rismondo - Via da Baggio
Via Rismondo - Via da Baggio
30 m
Via da Baggio - Via Quinto Romano
Via da Baggio - Via Quinto Romano
140 m
Ricariche auto elettriche Ricariche auto elettriche
LIDL Milano Forze Armate
970 m
Centro Commerciale La Torre - distributore IP
1,7 Km
A2A Isola Digitale Bisceglie
2,0 Km
Redimec Group
2,3 Km
Settimo Milanese Keplero | EnelX
2,3 Km
Scuole Scuole
Scuole
130 m
scuola maedia inf iqbal masik
260 m
Scuola Primaria Luigi Einaudi
560 m
Scuola elementare Madre Bucchi
940 m
Scuola Secondaria di Primo Grado Iqbal Masih
1,1 Km
Farmacia Farmacia
Farmacia
300 m
Farmacia Comunale
930 m
Farmacia comunale
1,3 Km
Farmacia Pasubio
2,0 Km
Farmacia Camera
2,0 Km
Ospedali Ospedali
Ospedali
210 m
Casa di Cura Ambrosiana
1,7 Km
Ospedale San Carlo Borromeo
1,9 Km
Supermercati Supermercati
Carrefour Market
470 m
Lidl
970 m
Eurospin
1,0 Km
Coop
1,3 Km
IN'S
1,4 Km
Negozi Negozi
Ina Market
490 m
Negozi
560 m
Simply Market
1,9 Km
La Bontà del Forno
1,9 Km
Abbigliamento Multifirme
2,3 Km
Bar Bar
Bar
1,1 Km
Cake l’HUB
1,8 Km
Bosco in città
2,0 Km
Los Locos
2,1 Km
Cascina Torrette di Trenno
2,7 Km
Ristoranti Ristoranti
Trattoria Fà Ballà l'Oeucc
230 m
Latitud 00
300 m
Fà Ballà l’Oeuch
310 m
Alla Grande, osteria tradizionale
390 m
Bar Trattoria 395
430 m
Mostra tutto

Caratteristiche

Rif.:
61142341
Piano:
Terra di 2
Totale piani:
2
Camere da letto:
1
Arredamento:
Parziale
Condizionamento:
Autonomo
Mostra tutto
Prezzo Prezzo
€ 900 / mese
Spese annue Spese annue
€ 1.200

Classe Energetica

G
G
G
G
G
G
G
G
G
EP globale non rinnovabile:
297.46 kW h/m² anno
EP globale rinnovabile:
297.46 kW h/m² anno
EP invernale del fabbricato:
EP estiva del fabbricato:
Anno di costruzione:
1960
Riscaldamento:
Autonomo
Tipo impianto:
A radiatori
Tipo alimentazione:
Metano

Ti interessa visionare l'immobile?

Fissa un appuntamento  Fissa un appuntamento

Richiedi informazioni

* Questi campi sono obbligatori
Affiliato
Sviluppo Immobiliare Baggio Srl
Via Giuseppe Gianella, 21 20152 Milano (MI)

Il nostro staff


  • Federica Monardo
    Coordinatrice

  • Giovanna Vitale
    Affiliata
Via Giuseppe Gianella, 21 20152 Milano (MI)
Zona: Baggio-Muggiano-Quartiere Olmi
Mostra su mappa
Orari: Dal Lunedì al Venerdì: 09.00-20.00. Sabato: 09.00-18.00.
Affiliato
Sviluppo Immobiliare Baggio Srl
Via Giuseppe Gianella, 21 20152 Milano (MI)

2025 Tecnocasa Franchising S.p.A. - P. IVA 08365160152 - Via Monte Bianco 60/A 20089 Rozzano (MI). Ogni agenzia ha un proprio titolare ed è autonoma. Privacy policy | Policy utilizzo | Cookie policy