Bilocale in vendita

Milano, Via Antonio Mosca - Baggio
€ 165.000
2 locali 2 locali
62 Mq 62 Mq
1 bagno 1 bagno

Bilocale in vendita

Milano, Via Antonio Mosca - Baggio

Descrizione annuncio

Via Antonio Mosca:

Nel cuore del quartiere “Baggio”, adiacente a Via Val Cannobina ed a pochi passi da Via Cabella, oltre che a pochi metri dalla fermata di vari mezzi di superficie (58/76/NM1) che in meno di 15 minuti conducono anche alla fermata della metropolitana M1 BISCEGLIE che permette in breve di arrivare al centro della città; proponiamo, in contesto residenziale ben tenuto nelle parti comuni, un BILOCALE con balcone, posto al piano rialzato in stabile fornito di ascensore.

La zona risulta tranquilla e ben servita, fornita di tutti i servizi di prima necessità come supermercati, farmacie, scuole, poste, bar, ristoranti. Inoltre, il quartiere è noto per essere tranquillo, circondato da parchi e zone verdi, ma allo stesso tempo ben collegato con il centro città grazie ai mezzi di trasporto pubblico. Questa combinazione offre una qualità della vita elevata, soprattutto per chi cerca un equilibrio tra la frenesia della città e la tranquillità della natura.

La zona si prepara a diventare oggetto di un'importante trasformazione e sviluppo, che porterà il valore delle proprietà ad aumentare nel tempo, basti pensare alla futura fermata della metropolitana M1, proprio all’interno del quartiere.

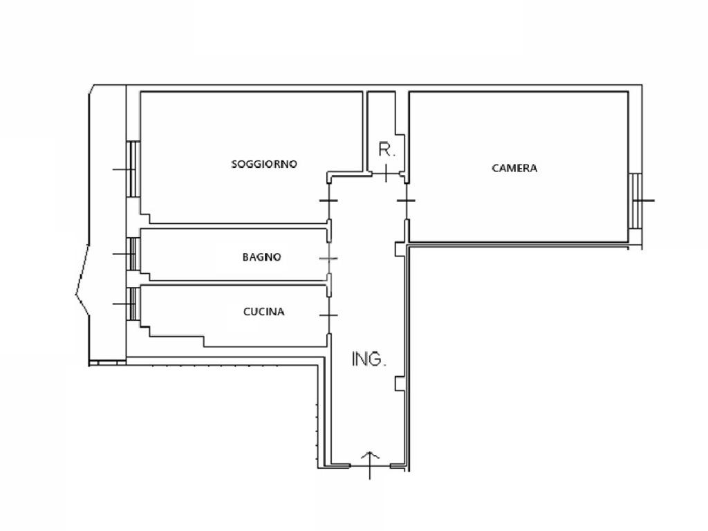
L'appartamento risulta essere così composto:

Ingresso in corridoio, dal quale possiamo accedere ai vari ambienti della casa e dove troviamo, subito sulla sinistra, la cucina abitabile, fornita di finestra con affaccio tranquillo sul balcone. Proseguendo, a seguire, con medesima esposizione ed affaccio, troviamo il bagno anch’esso finestrato e il soggiorno luminoso e dotato di portafinestra che conduce sul balcone che affaccia sul cortile condominiale. Proseguendo poi dal disimpegno, troviamo infine la camera da letto matrimoniale, con opposta esposizione ed affaccio rispetto alla zona giorno.

Completa la soluzione anche un comodo ripostiglio in corridoio.

Ad oggi l’intero appartamento si presenta in stato interno da ristrutturare. Con pavimentazione in marmo in tutti gli ambienti della casa ed infissi in doppio vetro/legno.

Plus non indifferente è da ritrovare nella presenza di un ampio balcone che sviluppandosi in maniera regolare sia in larghezza che lunghezza, consente di inserire vari elementi di arredo per sfruttarne a pieno lo spazio; oltre che nella doppia esposizione che consente di avere luce e ricircolo d’aria nell’immobile a tutte le ore del giorno.

Inoltre la possibile personalizzazione degli spazi a seguito di ristrutturazione consentirà ai futuri proprietari di rendere l’immobile perfetto per le proprie esigenze e gusti personali.

Riscaldamento centralizzato.

Completa la soluzione una comoda cantina di pertinenza.

Ogni agenzia ha un proprio titolare ed è autonoma! Le informazioni non costituiscono elemento contrattuale! VALUTAZIONI GRATUITE!

Mostra tutto

Nelle vicinanze

Trasporto pubblico Trasporto pubblico
Bisceglie
Bisceglie
1,9 Km
Inganni
Inganni
2,6 Km
Lorenteggio
Lorenteggio
2,9 Km
Via Mosca - Via Val d'Intelvi
Via Mosca - Via Val d'Intelvi
70 m
Via Cabella - Via Gozzoli
Via Cabella - Via Gozzoli
160 m
Ricariche auto elettriche Ricariche auto elettriche
LIDL Milano Forze Armate
900 m
Centro Commerciale La Torre - distributore IP
1,2 Km
A2A Isola Digitale Bisceglie
1,9 Km
Settimo Milanese Keplero | EnelX
2,3 Km
Redimec Group
2,6 Km
Scuole Scuole
Scuola Primaria Luigi Einaudi
190 m
Scuole
230 m
scuola maedia inf iqbal masik
350 m
IPIA Rosa Luxemburg
700 m
Scuola elementare Madre Bucchi
750 m
Farmacia Farmacia
Farmacia
280 m
Farmacia Comunale
380 m
Farmacia comunale
1,3 Km
Farmacia Pasubio
1,4 Km
Farmacia Camera
1,4 Km
Ospedali Ospedali
Ospedali
400 m
Casa di Cura Ambrosiana
1,1 Km
Ospedale San Carlo Borromeo
2,2 Km
Supermercati Supermercati
Carrefour Market
460 m
Eurospin
700 m
IN'S
870 m
Lidl
910 m
Simply Market
1,0 Km
Negozi Negozi
Negozi
60 m
Ina Market
430 m
Simply Market
1,3 Km
Abbigliamento Multifirme
1,7 Km
Ladybird Outlet
1,7 Km
Bar Bar
Cake l’HUB
1,5 Km
Bar
1,7 Km
Erica
2,3 Km
Jolly Bar
2,4 Km
Los Locos
2,6 Km
Ristoranti Ristoranti
Alla Grande, osteria tradizionale
220 m
Bar Trattoria 395
220 m
Fà Ballà l’Oeuch
300 m
Trattoria Fà Ballà l'Oeucc
370 m
Latitud 00
510 m
Mostra tutto

Caratteristiche

Rif.:
61183092
Piano:
Basso di 5 con ascensore
Totale piani:
5
Balconi:
1
Camere da letto:
1
Arredamento:
Assente
Mostra tutto
Prezzo Prezzo
€ 165.000
Rata mutuo Rata mutuo
€ 766 / mese
Spese annue Spese annue
€ 1.600
Proponi il tuo prezzoProponi il tuo prezzo

Classe Energetica

G
G
G
G
G
G
G
G
G
EP globale non rinnovabile:
286.52 kW h/m² anno
EP globale rinnovabile:
286.52 kW h/m² anno
EP invernale del fabbricato:
EP estiva del fabbricato:
Anno di costruzione:
1962
Riscaldamento:
Centralizzato
Tipo impianto:
A radiatori
Tipo alimentazione:
Metano

Ti interessa visionare l'immobile?

Fissa un appuntamento  Fissa un appuntamento

Richiedi informazioni

Clicca su Leggi per aprire l'informativa
* Questi campi sono obbligatori

Calcola il tuo mutuo

Semplice e senza impegno
Anticipo

( % )
Mutuo

( % )

pochi semplici passi

inserisci i tuoi dati
Questionario completato
Grazie per aver richiesto un appuntamento senza impegno con un nostro Consulente del Credito e Assicurativo.

Hai inserito correttamente tutti i dati necessari e a breve riceverai una e-mail con un link da convalidare per inviare i tuoi dati.
Affiliato
Sviluppo Immobiliare Baggio Srl
Via Giuseppe Gianella, 21 20152 Milano (MI)

Il nostro staff


  • Federica Monardo
    Coordinatrice

  • Giovanna Vitale
    Affiliata
Via Giuseppe Gianella, 21 20152 Milano (MI)
Zona: Baggio-Muggiano-Quartiere Olmi
Mostra su mappa
Orari: Dal Lunedì al Venerdì: 09.00-20.00. Sabato: 09.00-18.00.
Affiliato
Sviluppo Immobiliare Baggio Srl
Via Giuseppe Gianella, 21 20152 Milano (MI)

2026 Tecnocasa Franchising S.p.A. - P. IVA 08365160152 - Via Monte Bianco 60/A 20089 Rozzano (MI). Ogni agenzia ha un proprio titolare ed è autonoma. Privacy policy | Policy utilizzo | Cookie policy